Contact
Benoit Muyldermans architecte
Contact
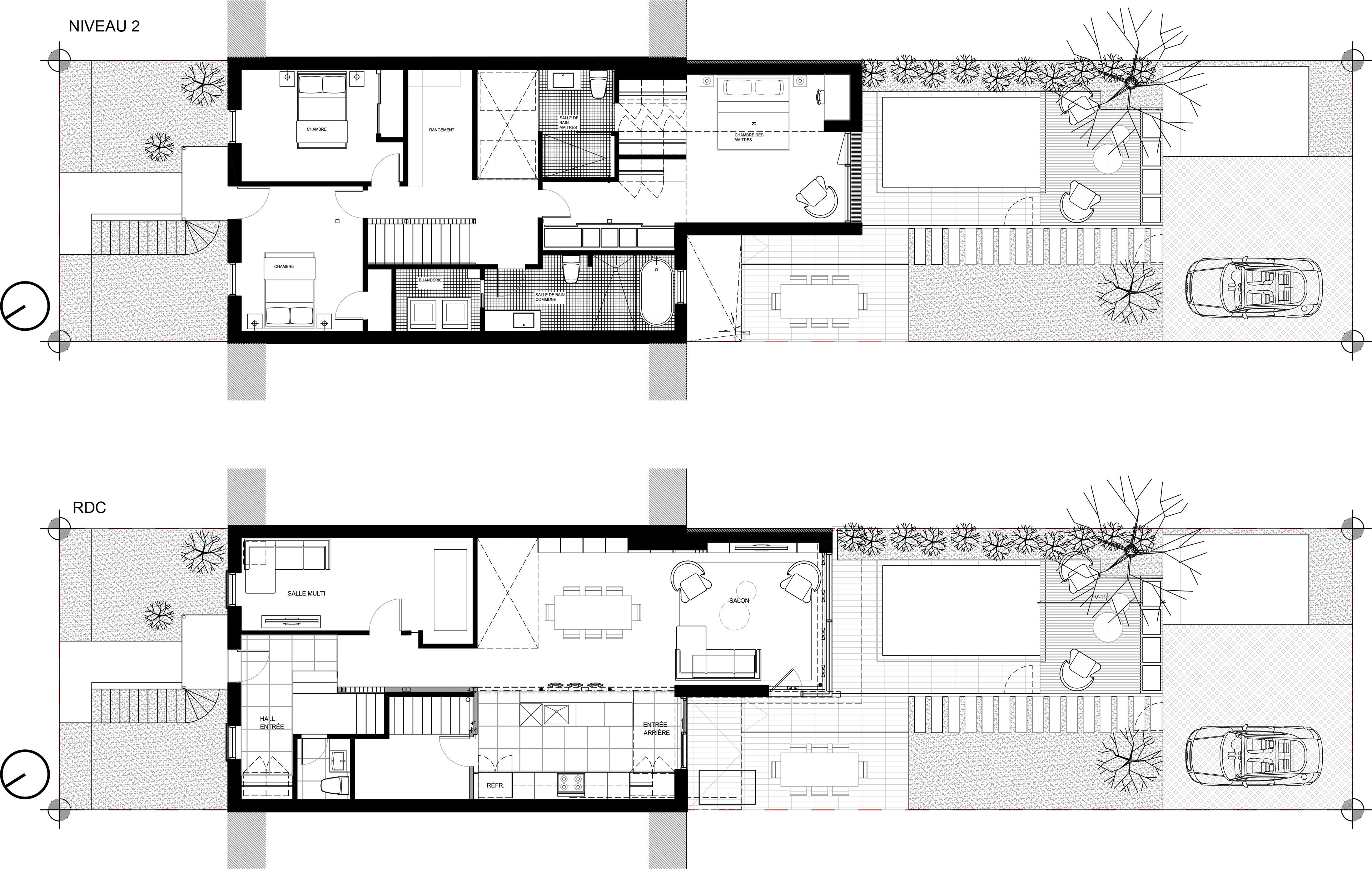
Chambord
Projet construit - photos à venir...
↑
Back to Top